Verkocht:Sint Josephstraat 19, 6942 JM Didam - Foto
Verkocht
+56

Sint Josephstraat 19 6942 JM Didam

  • Woonhuis
  • 6 kamers
  • 2 badkamers
  • Bouwjaar 1928
  • 595 m² perceeloppervlakte
  • 178 m² gebruiksoppervlakte
  • D Energielabel D

Beschrijving

Een woning die je echt gezien moet hebben!
Deze instapklare uitgebouwde twee-onder-een-kapwoning met luxe afwerking aan de Sint Josephstraat 19 in Didam is op zoek naar een nieuwe eigenaar. Met twee badkamers, gelijkvloers wonen mogelijk, een grote inpandige garage én een heerlijke diepe tuin met overkapping en een hottub!

10 jaar geleden, toen de huidige eigenaren deze woning kochten, kochten ze het met name voor de tuin. Inmiddels is de woning ook aardig onder handen genomen en is er een fijn nieuw (t)huis van gemaakt.

We lopen er even door heen:

Bij binnenkomst word je verwelkomd in een lichte hal met de trap naar boven en de toegang tot de woonkamer. De sfeervolle living, voorzien van shutters en veel natuurlijk licht, staat in open verbinding met de moderne en stoere keuken. Vanuit de woonkamer is er toegang tot de werk/hobby/slaapkamer en aansluitend ook de badkamer op de begane grond – ideaal voor gelijkvloers wonen. Er ligt een gietvloer en er is een fraaie elektrische haard aanwezig.

In de hal richting de garage bevindt zich een toilet met een fonteintje. De inpandige garage is ruim, verwarmd, heeft een kookgelegenheid en is dus multifunctioneel te gebruiken. Hier zijn tevens openslaande tuindeuren, zo kun je deze ruimte heel handig gebruiken bij een barbecue of jullie housewarming party.

De achtertuin is keurig aangelegd, met een grote overkapping voor lange zomeravonden en een hottub voor ultieme ontspanning. De vrijstaande houten berging biedt volop ruimte voor al je opslag of hobby’s.

Op de eerste verdieping vind je nog eens 3 slaapkamers, een tweede moderne badkamer en een kleedhok. De badkamer heeft een ruime inloopdouche, 3e toilet en een wastafelmeubel.

Locatie:

Gelegen aan de Sint Josephstraat in een rustige woonwijk, dichtbij voorzieningen zoals scholen, winkels, openbaar vervoer en uitvalswegen. Een ideale combinatie van rust en bereikbaarheid. De A18 en A12 zijn in enkele minuten te bereiken.

Bijzondere kenmerken:

Instapklaar – modern afgewerkt en goed onderhouden, direct te betrekken
Gelijkvloers wonen mogelijk – dankzij een kamer en badkamer op de begane grond
Twee badkamers – ideaal voor gezinnen of gasten
12 zonnepanelen en 2 airco's - goed voor de portemonnee en het milieu
Shutters in de woonkamer – stijlvolle en praktische raamdecoratie
3 slaapkamers en een kleedhok – de grote slaapkamer heeft een frans balkon
Grote inpandige garage – met vloerverwarming, ook ideaal als hobbyruimte of werkplek
Overkapping aan de achterzijde – beschut genieten van het buitenleven
Hottub – bubbelen in je eigen tuin, deze blijft achter!
Vrijstaande houten berging – extra bergruimte voor je tuinspullen of hobby

Zie jij jezelf hier al zitten?
Neem snel contact op voor een vrijblijvende bezichtiging.

VRAAGPRIJS € 525.000,- K.K.

AANVAARDING : in overleg

Kaart

Kenmerken

Overdracht

Referentienummer
00096
Vraagprijs
€ 525.000,- k.k.
Status
Verkocht
Aanvaarding
In overleg
Laatste wijziging
Dinsdag 9 september 2025

Bouw

Type object
Woonhuis, eengezinswoning, twee onder een kap woning
Soort bouw
Bestaande bouw
Bouwperiode
1928
Dakbedekking
Bitumen
Dakpannen
Type dak
Samengesteld
Isolatievormen
Dubbel glas
HR-glas

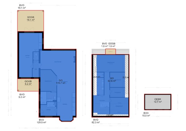
Oppervlaktes en inhoud

Perceeloppervlakte
595 m²
Woonoppervlakte
178 m²
Inhoud
598 m³
Oppervlakte gebouwgebonden buitenruimte
30 m²

Indeling

Aantal bouwlagen
2
Aantal kamers
6
Aantal badkamers
2

Locatie

Ligging
Aan rustige weg
In woonwijk

Tuin

Type
Achtertuin
Hoofdtuin
Ja
Oriëntering
West
Heeft een achterom
Ja
Staat
Goed onderhouden
Tuin 2 - Type
Voortuin

Energieverbruik

Energielabel
D

CV ketel

CV ketel
HR 107
Warmtebron
Gas
Bouwjaar
2021
Combiketel
Ja
Eigendom
Eigendom

Uitrusting

Warm water
CV-ketel
Gasboiler
Verwarmingssysteem
Centrale verwarming
Vloerverwarming (gedeeltelijk)
Ventilatie methode
Mechanische ventilatie
Badkamervoorzieningen Badkamer 1
Dubbele wastafel
Inloopdouche
Toilet
Wastafelmeubel
Badkamervoorzieningen Badkamer 2
Dubbele wastafel
Ligbad
Toilet
Wastafelmeubel
Parkeergelegenheid
Aangebouwde stenen garage
Inpandige garage
Heeft airco
Ja
Heeft een frans balkon
Ja
Glasvezelaansluiting aanwezig
Ja
Tuin aanwezig
Ja
Heeft een garage
Ja
Heeft schuur/berging
Ja
Heeft zonnepanelen
Ja
Heeft ventilatie
Ja

Kadastrale gegevens

Kadastrale aanduiding
Didam L 2021
Perceeloppervlakte
595 m²
Omvang
Geheel perceel
Eigendomsituatie
Eigen grond