Verkocht:Hertog Arnoudstraat 26, 6915 XL Lobith - Foto
Verkocht
+35

Hertog Arnoudstraat 26 6915 XL Lobith

  • Woonhuis
  • 4 kamers
  • 1 badkamer
  • Bouwjaar 1962
  • 160 m² perceeloppervlakte
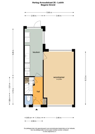
  • 75 m² gebruiksoppervlakte
  • E Energielabel E

Beschrijving

Starters opgelet!

Ben je op zoek naar een woning die je helemaal naar eigen smaak kunt opknappen? Dan is deze tussenwoning aan de Hertog Arnoudstraat 26 in Lobith iets voor jou! Maar liefst 61 jaar geleden trok de huidige eigenaresse hier ook als starter in en ze heeft hier al die jaren met veel plezier gewoond.

Deze woning beschikt over een ruime tuin met berging en een achterom, ideaal voor wie van buitenruimte houdt. Binnen biedt het huis volop mogelijkheden om het geheel naar eigen wens te moderniseren. Met een beetje liefde en aandacht tover je deze woning om tot jouw droomhuis! De keuken is al een stukje uitgebouwd, maar er is nog ruimte om vergunningsvrij aan te bouwen.

Op de bovenverdieping zijn 3 slaapkamers en een badkamer met douche en wastafel. De badkamer kan eventueel iets uitgebreid worden richting de slaapkamer. Op de 2 andere kamers zijn vaste kasten aanwezig, altijd handig die extra bergruimte. Middels een vlizotrap ga je naar de vliering, waar tevens de CV ketel hangt.

De gehele woning is voorzien van houten kozijnen en dubbel glas. Op de benedenverdieping zijn rolluiken aanwezig.

De ligging is perfect: op loopafstand vind je diverse voorzieningen zoals een supermarkt, basisschool, speeltuin en gezondheidscentrum. Voor ontspanning en recreatie is er genoeg te doen in de omgeving: maak een mooie wandeling door de Geuzenwaard, fiets langs de dijken van de Rijn, vaar met je bootje op de Byland of wandel in de Montferlandse bossen. De A12 , A18 en Duitse A3 zijn in 10-15 minuten te bereiken.

BIJZONDERHEDEN:
- dakgoten vervangen
- bitumen platte daken vervangen
- rolluiken benedenverdieping
- fraaie tuin met berging en achterom

Ben jij de handige starter of doe-het-zelver die deze woning nieuw leven inblaast? Kom dan naar de open dag of maak een afspraak voor een bezichtiging.

VRAAGPRIJS € 250.000,- K.K.

AANVAARDING: in overleg, kan op korte termijn

Kaart

Kenmerken

Overdracht

Referentienummer
00085
Vraagprijs
€ 250.000,- k.k.
Status
Verkocht
Aanvaarding
In overleg
Laatste wijziging
Dinsdag 9 september 2025

Bouw

Type object
Woonhuis, eengezinswoning, tussenwoning
Soort bouw
Bestaande bouw
Bouwperiode
1962
Dakbedekking
Dakpannen
Type dak
Zadeldak
Isolatievormen
Dubbel glas

Oppervlaktes en inhoud

Perceeloppervlakte
160 m²
Woonoppervlakte
75 m²
Inhoud
292 m³
Oppervlakte overige inpandige ruimten
3 m²

Indeling

Aantal bouwlagen
3
Aantal kamers
4
Aantal badkamers
1

Locatie

Ligging
Aan rustige weg
In woonwijk

Tuin

Type
Achtertuin
Hoofdtuin
Ja
Oriëntering
West
Heeft een achterom
Ja
Staat
Normaal
Tuin 2 - Type
Voortuin

Energieverbruik

Energielabel
E

CV ketel

CV ketel
HR 107
Warmtebron
Gas
Combiketel
Ja
Eigendom
Eigendom

Uitrusting

Warm water
CV-ketel
Verwarmingssysteem
Centrale verwarming
Badkamervoorzieningen
Douche
Wastafel
Glasvezelaansluiting aanwezig
Ja
Tuin aanwezig
Ja
Heeft rolluiken
Ja
Heeft schuur/berging
Ja

Kadastrale gegevens

Kadastrale aanduiding
Lobith en Spijk B 2770
Perceeloppervlakte
160 m²
Omvang
Geheel perceel
Eigendomsituatie
Eigen grond

Media

Plattegronden