Nieuw in verkoop:Dorpsdijk 5, 6915 AA Lobith - Foto
Nieuw in verkoop
+48

Dorpsdijk 5 6915 AA Lobith € 495.000,- k.k.

  • Woonhuis
  • 4 kamers
  • 3 slaapkamers
  • 1 badkamers
  • Bouwjaar 1908
  • 240 m² perceeloppervlakte
  • 142 m² gebruiksoppervlakte
  • G Energielabel G

Beschrijving

Unieke kans: sfeervolle gemoderniseerde dijkwoning met prachtig uitzicht

Deze sfeervolle twee onder 1 kap woning, gebouwd in 1908, met nog authentieke details zoals de glas in lood ramen heeft een gloednieuwe, luxe keuken en badkamer. Het is dé perfecte stek voor doorstromers en gezinnen die op zoek zijn naar nét dat beetje extra. Lees snel verder en laat je verrassen!

Heerlijk wonen aan de rand van het groen

Stap je hier binnen, dan voel je het meteen: deze dijkwoning heeft het karakter van toen maar ademt helemaal de tijd van nu. Gelegen aan de rustige Dorpsdijk, met vrij zicht over uitgestrekte weilanden, de oude Rijnstrangen en het Natura 2000 gebied, woon je hier op een plek waar natuur, ruimte en vrijheid centraal staan. En met de wijk Lobith op een steenworp afstand, heb je alles wat je nodig hebt gewoon binnen handbereik.

Stoere gezinswoning met slimme indeling

Dit tweekapper voelt ruim aan dankzij de slimme indeling en de grote raampartijen die ervoor zorgen dat je aan licht geen gebrek hebt. Zet de openslaande tuindeuren naar het balkon open en het buitenleven komt letterlijk bij je naar binnen. Ideaal voor een lekker kopje koffie in de avondzon of een fijne winter barbecue met je vrienden.

Genieten in stijl: de keuken & badkamer

Over koken gesproken: de spiksplinternieuwe, luxe keuken met koffiecorner is helemaal van deze tijd. Het stijlvolle kookeiland heeft een keramisch werkblad en mooie ronde vormen. Er zijn diverse inbouwapparatuur aanwezig; een koelvries combinatie, afwasmachine, combi oven en een Quooker met bruisfunctie. Hier sta je elke avond met plezier in de pannen te roeren!

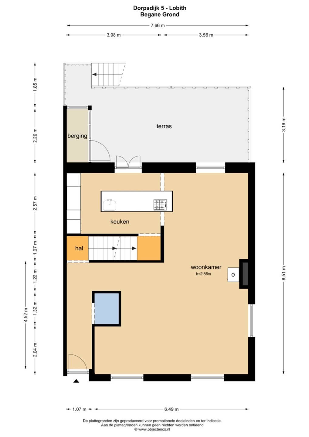
En wil je na een lange dag helemaal tot rust komen? Dat lukt vast wel in deze prachtige badkamer. Er is een royale inloopdouche en een natuurstenen wasbak die voor een vleugje hotel-sfeer zorgt. Het toilet op deze verdieping is ook recent vernieuwd en mooi in dezelfde stijl doorgetrokken. Zowel de badkamer als het toilet zijn voorzien van vloerverwarming. Beneden in de hal moet er nog een toilet gerealiseerd worden, dat is dan aan de nieuwe eigenaar om dit in richten naar zijn/haar eigen smaak.

Handig & praktisch: genoeg bergruimte!

Je spullen opbergen is in deze woning geen probleem: onder het balkon zijn handige inbouwkasten geplaatst. Daarnaast is er een ruime zolder en een inpandige berging, ideaal voor fietsen, tuingereedschap en sportspullen. Zelfs op het balkon vind je extra opbergmogelijkheden. Alles netjes uit het zicht, wel zo fijn!
In de kelder is er naast een wijnkelder en de wasmachine- en drogeraansluiting ook nog een toilet aanwezig met een eenvoudige douche.

De buitenruimte

De tuin bereik je via de straat, de trap vanaf het balkon of de kelder.
Kinderen kunnen hier heerlijk spelen terwijl jij relaxed op of onder het balkon. Wil je lekker een wandeling maken dan loop je iets verderop zo het natuurgebied in.
In slechts 10-15 min ben je op de A12, de A18 of de Duitse A3 of in Zevenaar of Didam. Doetinchem en Arnhem zijn binnen een half uur te bereiken.

Nog wat laatste details:

- Houten kozijnen met dubbelglas
- Vloerverwarming woonkamer, keuken, badkamer en toilet boven
- Grote kelder en zolder met vaste trap (4e kamer mogelijk)
- Vernieuwde meterkast 2025, CV van 2022
- en last but not least: een fantastisch uitzicht !

Wil jij wonen in een huis met sfeer, karakter én comfort – op een toplocatie met een weids uitzicht? Dorpsdijk 5 in Lobith heeft het allemaal. Deze dijkwoning biedt de ruimte en mogelijkheden om je dromen waar te maken. Kom kijken, proef de sfeer en stel je voor hoe jouw leven eruitziet op deze geweldige plek.

Plan zelf je bezichtiging in of bel / mail gerust voor het maken van een afspraak.

VRAAGPRIJS : € 495.000,- K.K.

AANVAARDING : in overleg

Kaart

Kenmerken

Overdracht

Referentienummer
00116
Vraagprijs
€ 495.000,- k.k.
Status
Nieuw in verkoop
Aanvaarding
In overleg
Aangeboden sinds
Woensdag 5 november 2025
Laatste wijziging
Vrijdag 14 november 2025

Bouw

Type object
Woonhuis, eengezinswoning, twee onder een kap woning, dijkwoning
Soort bouw
Bestaande bouw
Bouwperiode
1908
Dakbedekking
Bitumen
Dakpannen
Type dak
Samengesteld
Isolatievormen
Dubbel glas
Grotendeels dubbel glas
Vloerisolatie

Oppervlaktes en inhoud

Perceeloppervlakte
240 m²
Woonoppervlakte
142 m²
Inhoud
638 m³
Oppervlakte overige inpandige ruimten
42 m²
Oppervlakte gebouwgebonden buitenruimte
46 m²

Indeling

Aantal bouwlagen
3 (en 1 kelder)
Aantal kamers
4 (waarvan 3 slaapkamers)
Aantal badkamers
1 (en 2 aparte toiletten)

Locatie

Ligging
Aan rustige weg
In woonwijk
Vrij uitzicht

Tuin

Type
Achtertuin
Hoofdtuin
Ja
Oriëntering
Noord west
Heeft een achterom
Ja
Staat
Normaal
Tuin 2 - Type
Voortuin
Tuin 2 - Oriëntering
Zuidoost
Tuin 2 - Staat
Normaal

Energieverbruik

Energielabel
G

CV ketel

CV ketel
HR 107
Warmtebron
Gas
Bouwjaar
2022
Combiketel
Ja
Eigendom
Eigendom

Uitrusting

Warm water
CV-ketel
Verwarmingssysteem
Centrale verwarming
Houtkachel
Vloerverwarming (gedeeltelijk)
Ventilatie methode
Natuurlijke ventilatie
Badkamervoorzieningen
Inloopdouche
Ligbad
Toilet
Vloerverwarming
Wastafel
Wastafelmeubel
Heeft een balkon
Ja
Heeft een rookkanaal
Ja
Glasvezelaansluiting aanwezig
Ja
Tuin aanwezig
Ja
Heeft schuur/berging
Ja

Kadastrale gegevens

Kadastrale aanduiding
Zevenaar C 1355
Perceeloppervlakte
240 m²
Eigendomsituatie
Eigen grond

Brochure(s) en overige bijlagen

Dorpsdijk 5, 6915 AA LOBITH (1) Download